top of page
Mulgrave - Current Project
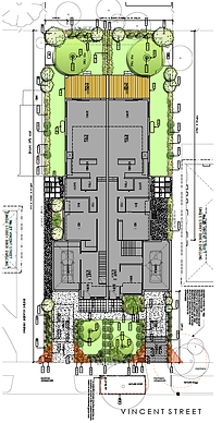
This side-by-side townhouse development offers modern design with 2 two storey units. Each unit features contemporary open plan living and flexible floor plans, optimizing natural light and energy efficiency. Design features include modern exteriors and a range of material finishes. Within easy reach of shops, schools and amenities, this townhouse development provides the perfect balance of comfort and convenience.













bottom of page
